Description
Interesting Angles
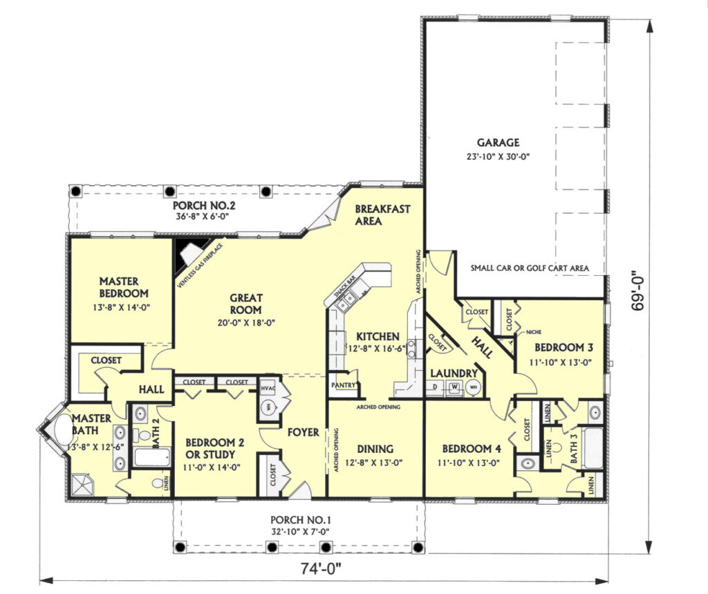
This home offers an angled snack bar in the kitchen with a large walk-in pantry. Arched openings accent the Dining Room from the Kitchen and Foyer.
Off the Foyer is located Bedroom 2 or a study/office. This room has a full bath, so you have options galore.
The Master Bedroom wing has a large walk-in closet and spa-style bath. This bath has a whirlpool tucked into an angled bay, dual sinks, a corner shower, and a separate toilet compartment.
Bedrooms 3 and 4 share a Jack and Jill bath and each has its own linen area, for even more privacy.
This home offers a large garage. This could be a two-car garage with an extra bay for storage, a golf cart, or a workshop area. OR if you have a smaller car – you could have a 3 car garage!
The rear covered porch is great for relaxing in the afternoon or with a cup of coffee off the angled Breakfast Area.

















