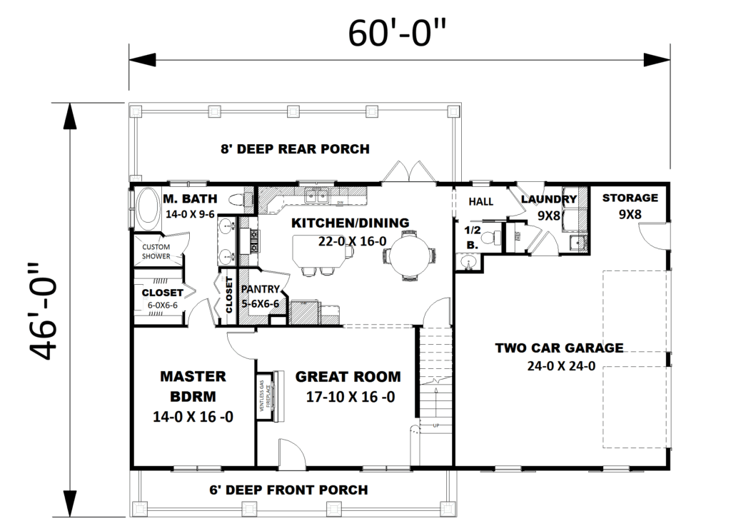
Description
Master Bedroom 1st floor
The Kitchen has an island with a snack bar and a walk-in pantry with easy access to the rear deck from double French doors.
The great room has a ventless gas fireplace.
The master bedroom is large and has access to his and her walk-in closets.
The master bath has dual sinks, a jetted tub, and a custom shower.
The laundry room has lots of storage and easy access to the bath.



































