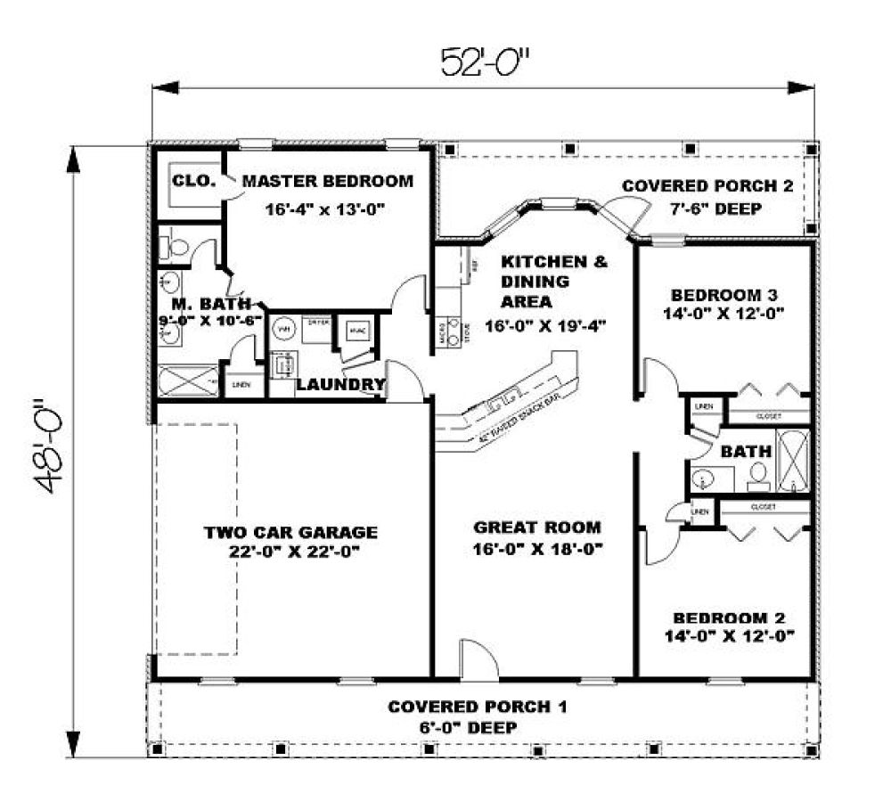
Description
This house has three bedrooms, two bathrooms, and even a two-car garage. Both the front and rear porches are covered! The large kitchen is great for holidays and you have family and friends over, everyone will not be running into each other! Now in the dining area, you will see a bay window which gives you a great view outside!













