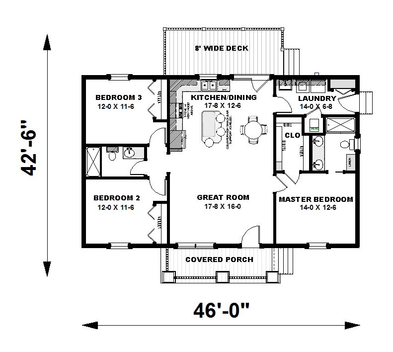
Description
Split bedroom layout for privacy.
Open kitchen/dining and great room perfect for entertaining.
The kitchen has a large island with a counter-high snack bar, French doors lead out onto the optional rear deck.
The Master bedroom is large and contains a private bath and walk-in closet.
The master bath has dual sinks, a tub/shower combo, a window, and plenty of storage.
Bedrooms 2 and 3 share a bath.
9′ ceilings
The large laundry room has lots of storage and a laundry sink for easy cleanup.













