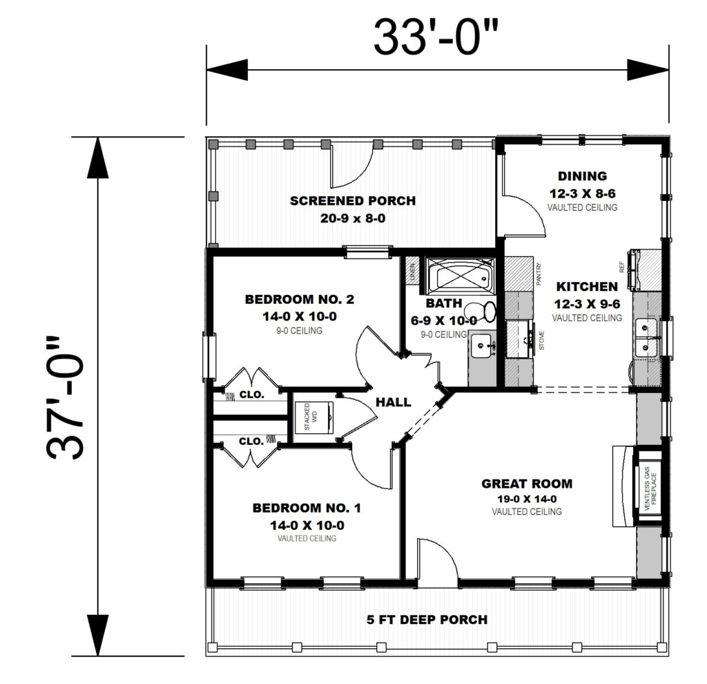
Description
This contemporary home boasts two bedrooms and a one bath. The front showcases four large
windows along with five upper windows that allow abundant natural light into the Great Room and
Bedroom 1. The ceilings are sloped, ranging from 14′ (approx) at the front to 9’ at the rear. A five-foot deep covered front porch spans the width of the house, inviting you into the Great Room, which
features a ventless gas fireplace positioned between two windows and lower cabinets for storage. The
Kitchen and Dining Area are separated from the Great Room by a large opening. From the Dining Area,
you can access the eight-foot-deep screened rear porch. A hallway from the Great Room connects to
both bedrooms, a laundry closet, and the bathroom. The laundry closet, created for a stacked washer
and dryer is located between the two bedrooms, while the bathroom is just steps away. The bathroom
includes a vanity and a storage nook with shelves next to the tub/shower. This house plan is ideal for a
vacation retreat, a starter home, or a dwelling for empty nesters’!





























