Description
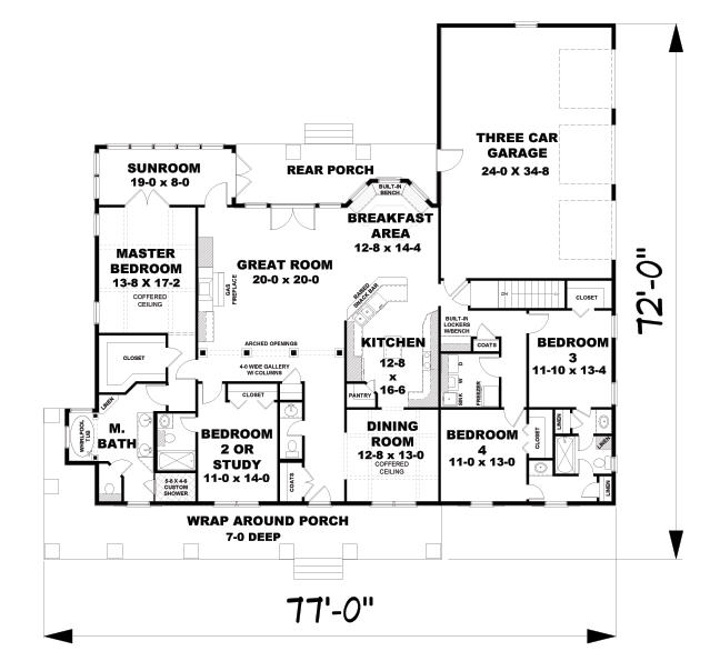
This stunning home has a large kitchen with a snack bar, a breakfast area with a built in bench, and an attached dining room with coffered ceilings. The great room has a gas fireplace and has access to the sun room or the rear porch.
The Master bedroom also has coffered ceilings. It has access to the sun room through French doors. The closet in the master is very spacious. The master bath has a linen closet, double sinks, a large custom shower, toilet closet, and a whirlpool bathtub.
Bedroom 2 has its own bathroom.
There is a half bath in the entry of the home.
The laundry room has space for a washer, dryer, and a freezer. There is also a sink in the laundry room for easy cleanups.
Bedroom 3 and 4 share a bathroom. The shared bathroom has separate sinks, separate linen closets, and a shared space with the toilet and tub/shower combo.
This home has a 3 car garage.





















