Description
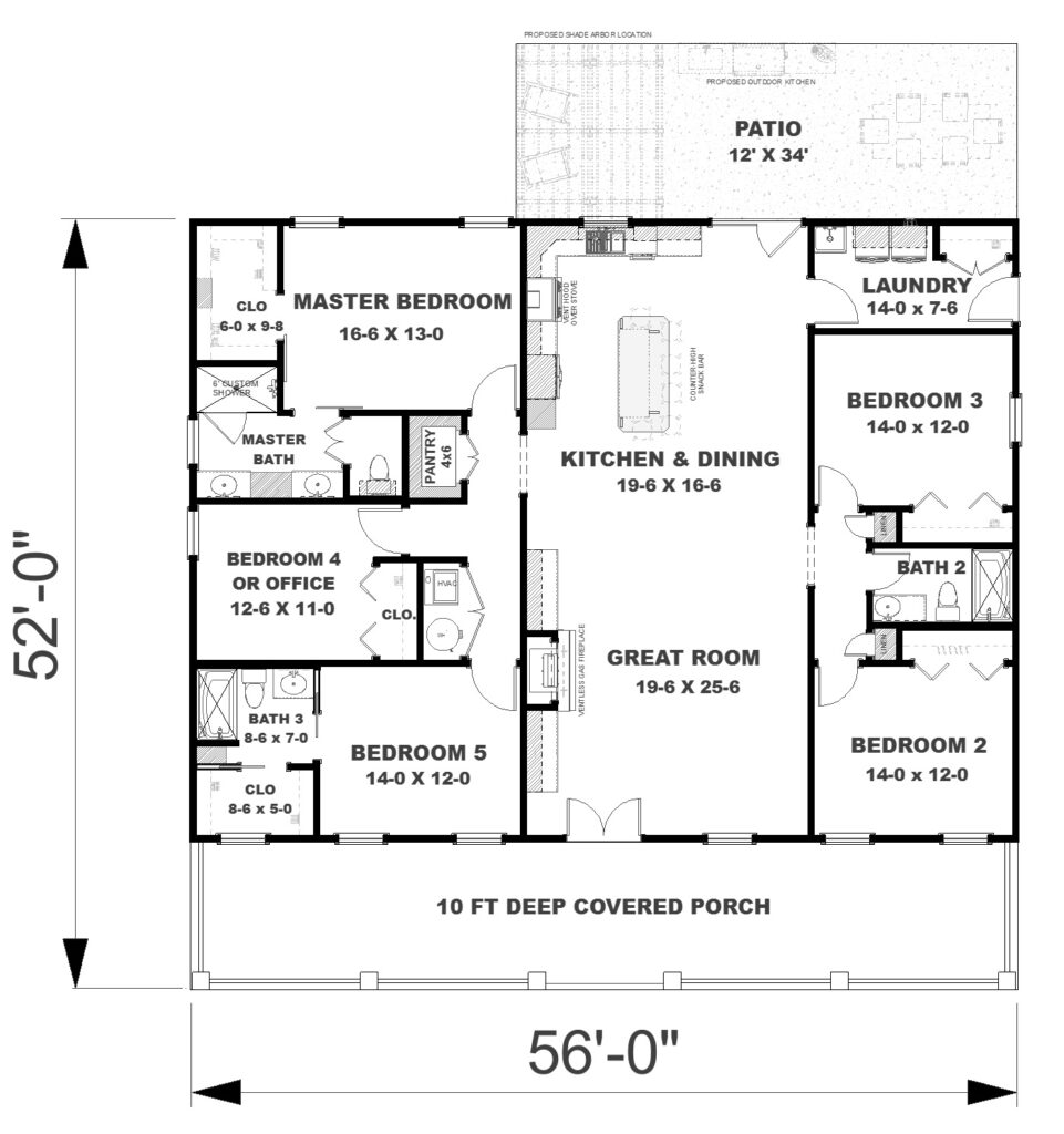
This beautiful home, comprised of 2,352 square feet, comprises 5 bedrooms and 3 bathrooms. There is a 10-foot-deep covered front porch stretching the home’s width and an optional patio in the rear. The main living area is spacious, with an open floor layout. There is an island with a counter-high snack bar in the kitchen. There is shelving on each side of the fireplace in the Great Room. The large walk-in pantry is in the hall near the kitchen. The Master Bedroom has a walk-in closet and bathroom. The Master Bathroom has dual sinks with storage in between, a large shower, and a toilet closet. The 4th bedroom could be a bedroom or a home office space. Bedroom 4 has a closet but could be used for storage if the homeowner makes this room an office. Bedroom 5 has a walk-in closet and a private bathroom. The laundry room has a closet and a laundry sink for easy cleanup. Bedrooms 2 and 3 share a bath with dual linen storage in the hall. There is no wasted space in this home; make it yours today!



































