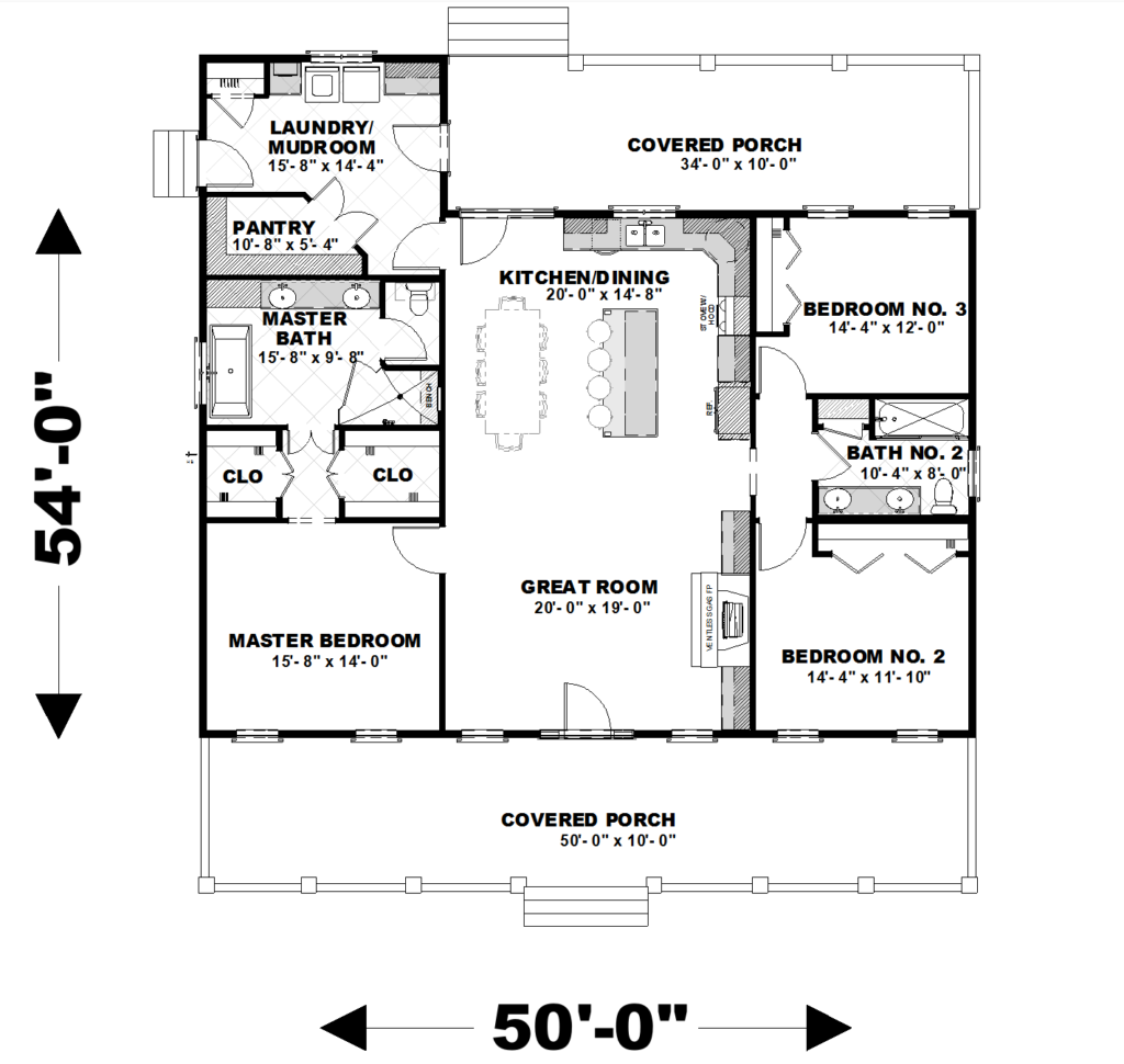
Description
Covered Front and Rear Porch that are both 10 ft. deep.
A ventless gas fireplace in the Great Room.
There is an island with a snack bar located in the Kitchen.
A spacious Pantry is located in the Laundry/Mudroom.
The Master Bedroom is located on one side of the house along with the Master Bathroom for more privacy.
The Master Bathroom also has a shower with a bench as well as an amazing free-standing tub.
Bedrooms 2 and 3 are on the other side of the house and share a large bathroom.















