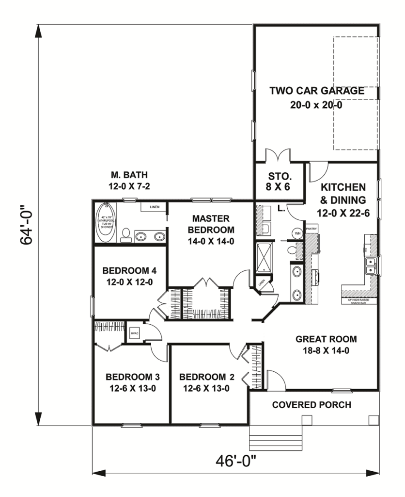
Description
Welcome to relaxed living in this beautifully designed 1,612 square foot home. Perfectly combining style and convenience, this charming abode offers four spacious Bedrooms and two elegant Bathrooms. It includes an open concept Kitchen featuring a raised snack bar that seamlessly flows into the Dining area, perfect for casual meals or entertaining friends. Bedrooms 2, 3, and 4 share a full-size Bathroom equipped with double vanities, providing comfort and functionality, having direct access to the Laundry Room. Retreat to your Master Bedroom, complete with a full-size Bathroom, double vanities, and a spacious Walk-in Closet. It’s your personal haven for relaxation. A double bay Garage with an additional Storage Room ensures you have ample space for vehicles and all your storage needs.





































