Description
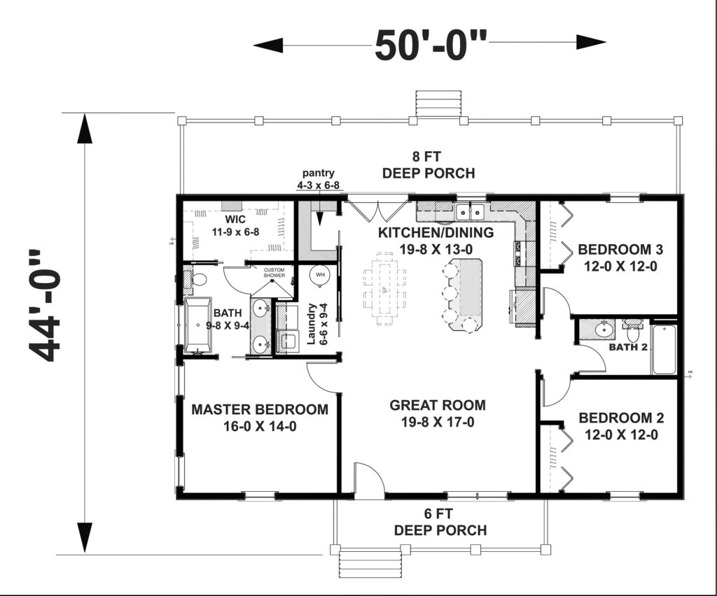
Split bedroom layout for privacy.
The Master Bedroom is large, has easy access to a walk-in closet, and a spa-style master bath!
The Master bath has dual sinks, a free-standing tub, a custom shower, and a large window for light.
Access the huge Master walk-in closet from the Master Bath – making getting dressed easier with lots of storage.
The Kitchen has a large island with a counter high snack bar and French doors lead out onto the covered Rear Porch. The Kitchen has a large walk-in pantry and close by is a nice sized laundry room.
Bedrooms 2 and 3 share a bath.





























