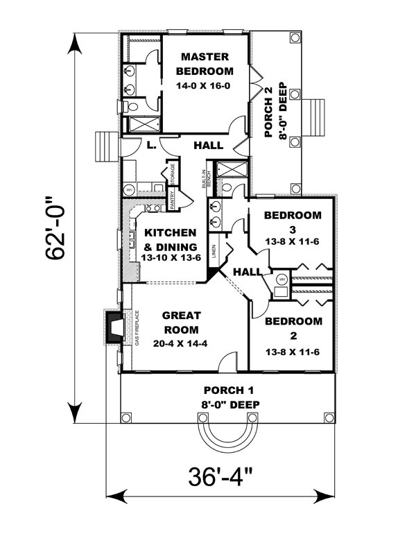
Description
This plan is perfect for a narrow lot of someone looking for a lot of house on a small budget. A large Great Room is home to a gas fireplace flanked by built-in cabinets with windows above. The Great Room has easy access to the Kitchen/Dining Area through an arched opening. The Kitchen/Dining Area has lots of storage and a walk-in pantry. A built-in storage bench can be found in the rear hall, the prefect spot for taking off your shoes after a long day. Bedrooms 2 and 3 share a compartment style bath with easy access for guests also, a large linen closet is located in this area for extra storage. The Master Bedroom is designed for extra privacy; French doors lead out onto the rear covered porch. The Master Bath is within easy access of a large walk-in closet. Two porches give you options and welcome you home at the end of a long day.















