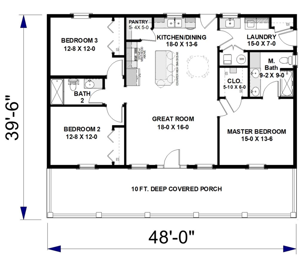
Description
This 3-bedroom, 2-bathroom home features a spacious 10-foot-deep covered porch perfect for relaxing outdoors. Upon entering, you will find yourself in the great room, leading to a kitchen with a counter-height snack bar and a large walk-in pantry for ample storage. Adjacent to the kitchen is a large laundry room with convenient exterior access. The master quarters boast a large walk-in closet, a double vanity, and a tub/shower combination for relaxation. On the opposite side of the plan, there are two bedrooms with closets and a shared full-size bathroom.



























