Description
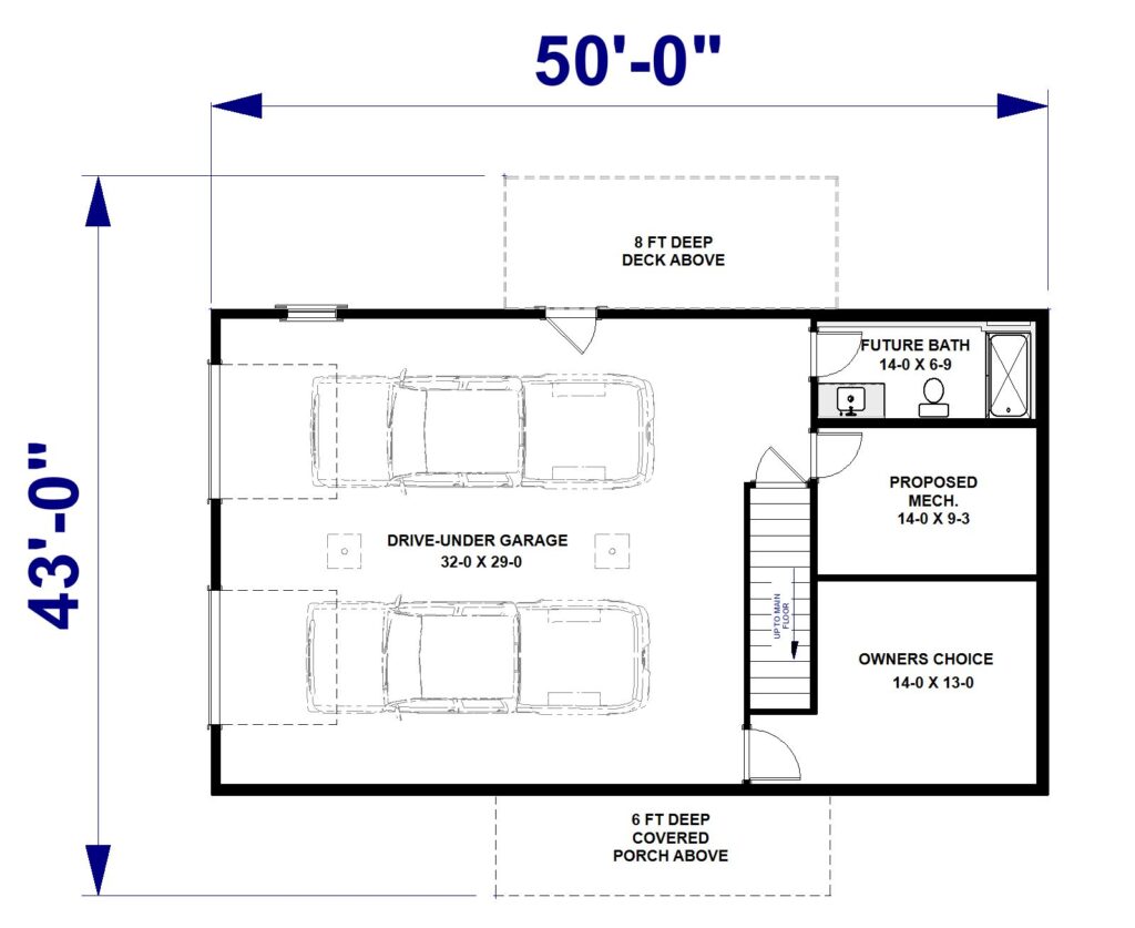
This floor plan offers 1,402 heated square feet with 3 bedrooms and 2 bathrooms. The garage is a drive-under 2-car garage. The main living area is open and spacious, featuring a large island with a counter-high snack bar in the kitchen. Additionally, there is a walk-in pantry in the laundry room. The laundry/mudroom is equipped with a sink, counter space, and locker area. The split bedroom layout provides privacy, with the Master bedroom featuring a walk-in closet, a bathroom with dual sinks, and a custom shower. In the rear, there is an 8-foot-deep deck. The walkout basement includes a 2-car garage, space for a future bathroom, and an owner’s choice room with room for storage.



























