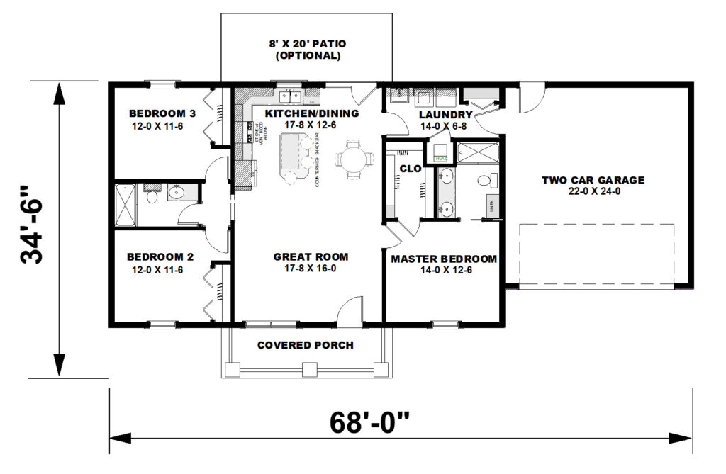
Description
Split bedroom layout for privacy and NO wasted space!
Open kitchen/dining and great room – perfect for entertaining!
The kitchen has a large island with a counter-high snack bar. French doors lead out onto the optional patio.
The Master bedroom is large and contains a private bath and walk-in closet.
The master bath has dual sinks, a tub/shower combo, and storage.
Bedrooms 2 and 3 share a bath.
The large laundry room has plenty of space for storage and a laundry sink for easy cleanups.



































